Ângulo externo com tecido antifogo 370x200x370 Aço galvanizado pelo método Sendzimir zinco

Ângulo externo com tecido antifogo 370x200x370 Aço galvanizado pelo método Sendzimir zinco

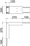
Ângulo externo com tecido intumescente de proteção contra incêndio para ducto de instalação PYROLINE® Rapid PLM. Adequado para a montagem direta na parede e no teto, montagem abaixo de sistemas de chão e em sistemas de suporte. Montagem de juntas, sem ferramentas, com união PLM SI. A tampa é encaixada, sem ferramentas, e permite uma rápida revisão e uso posterior. A projeção da tampa permite a instalação desfasada da tampa para a ligação equipotencial contínua de toda a secção do ducto. Sem manutenção elétrica de funções, conforme a DIN 4102, parte 12!

Identificadores do produto

SKU: 7218046
EAN: 4012197332051
GTIN: 4012197280666
MPN: PLM EC 1220 FS

Especificações

Cor Outro
Ângulo 90 °
EFDE0121 -
EFDE0122 -
Número RAL -
Altura externa -
Altura interna 120 mm
Tipo de bainha Aço
Largura interior 200 mm
Tipo de acabamento Galvanizado continuamente
Partições possíveis não
Orifício de montagem no chão -
Apropriado para a instalação ao ar livre -