Derivação em T com tecido antifogo 600x400x120 Aço galvanizado pelo método Sendzimir zinco

Derivação em T com tecido antifogo 600x400x120 Aço galvanizado pelo método Sendzimir zinco

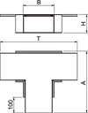
Derivação em T com tecido intumescente de proteção contra incêndio para ducto de instalação PYROLINE® Rapid PLM. Adequado para a montagem direta na parede e no teto, montagem abaixo de sistemas de chão e em sistemas de suporte. Montagem de juntas, sem ferramentas, com união PLM SI. A tampa é encaixada, sem ferramentas, e permite uma rápida revisão e uso posterior. A projeção da tampa permite a instalação desfasada da tampa para a ligação equipotencial contínua de toda a secção do ducto. Sem manutenção elétrica de funções, conforme a DIN 4102, parte 12!

Identificadores do produto

SKU: 7218082
EAN: 4012197365264
GTIN: 4012197273842
MPN: PLM TB 1220 FS

Categorias

Características

Cor
Outro
EFDE0121
-
EFDE0122
-
Número RAL
-
Altura externa
120 mm
Altura interna
-
Tipo de bainha
Aço
Largura exterior
200 mm
Largura interior
-
Material isolante
-
Tipo de acabamento
Galvanizado continuamente
Acessório da tampa
-
Partições possíveis
sim
Secção transversal útil
-
Orifício de montagem no chão
-
Número de lados duráveis ​​da chama
4
Apropriado para a instalação ao ar livre
-
Classe de proteção contra o fogo segundo EN 13501-2
-